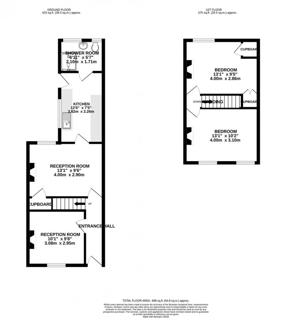
**New Instruction** A WELL PRESENTED TWO DOUBLE BEDROOM RED BRICK FRONTED TERRACE HOME, OFFERED WITH NO ONWARD CHAIN. THE PROPERTY BENIFITS FROM BOTH DOUBLE GLAZING & GAS RADIATOR CENTRAL HEATING. THE DOWNSTAIRS ACCOMMODATION CONSISTS OF AN ENTRANCE HALL, TWO SEPARATE RECEPTION ROOMS, FITTED GOOD SIZE KITCHEN & A RE-FITTED SHOWER ROOM. THE FIRST FLOOR LANDING GIVES ACCESS TO THE TWO SPACIOUS DOUBLE BEDROOMS. THERE IS AN ENCLOSED REAR GARDEN WITH POTENTIAL OFF ROAD PARKING. THIS PROPERTY IS FREEHOLD. WE STRONGLY RECOMMEND AN APPOINTMENT TO VIEW.