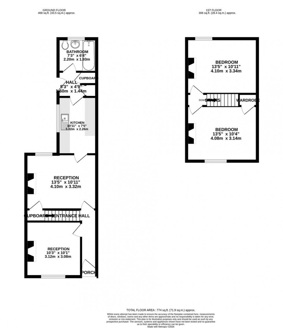
THIS WELL MAINTAINED TWO BEDROOM TERRACED HOME IS BEING SOLD WITH NO ONWARD CHAIN AND OFFERS SPACIOUS ACCOMMODATION. TO THE GROUND FLOOR AN ENTRANCE HALL LEADS TO THE FIRST RECEPTION ROOM WHICH IS A COSY SITTING ROOM WITH FIREPLACE, THE SECOND RECEPTION ROOM IS A GOOD SIZE DINING ROOM ALSO WITH FIREPLACE, A WELL APPOINTED KITCHEN IS NEXT LEADING TO A REAR LOBBY WITH DOOR TO THE GARDEN AND LASTLY THERE IS A BATHROOM. TO THE FIRST FLOOR THRE ARE TWO LARGE DOUBLE BEDROOMS BOTH WITH CHARACTER FIREPACES. THE SUNNY REAR GARDEN IS LAID TO PATIO FOR EASE OF MAINTENANCE WITH VARIOUS FLOWER BEDS AND A GATED REAR PEDESTRIAN ACCESS. ON STREET PARKING IS AVAILABLE TO FRONT (PERMIT REQUIRED). SOME COSMETIC UPDATING REQUIRED IDEAL FOR FIRST TIME BUYERS AND INVESTORS - DON'T MISS THE CHANCE OF MAKING THIS WELL LOVED HOME YOUR OWN.