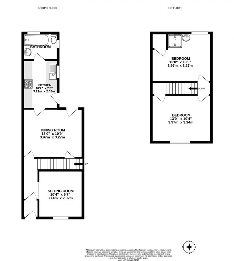
Two bedroom family home in need of refurbishment situated in the ever popular Gorse Hill area. Local amenities are well placed within easy walking distance and the property is available with no onward chain. The ground floor offers a dining room overlooking the front aspect, family room, modern fitted kitchen and downstairs bathroom. Upstairs there are two generous double bedrooms, both include storage and the master includes a shower and wash basin. Outside there is sizeable rear garden offering plenty of potential for improvement, there is also rear pedestrian access available.