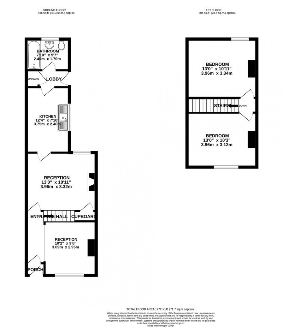
**NEW INSTRUCTION** A two double bedroom terrace home which has been refurbished throughout. A middle terrace home which is offered chain free. The accommodation consists of an entrance porch, two reception rooms, kitchen, inner hallway & bathroom. The first floor landing gives access to the two double bedrooms. There is a good size rear garden with potential off road parking. Contact the sole selling agents now for more information.