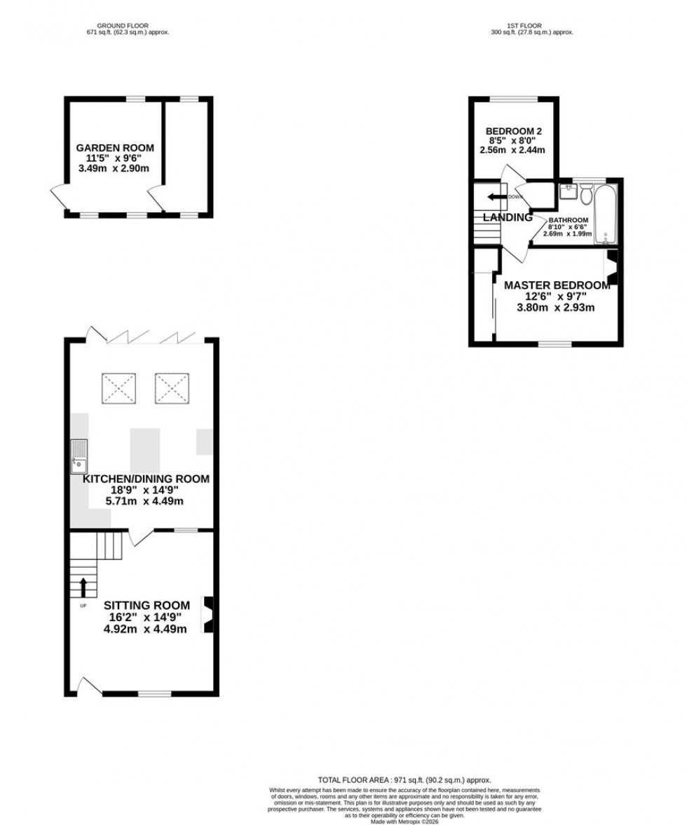
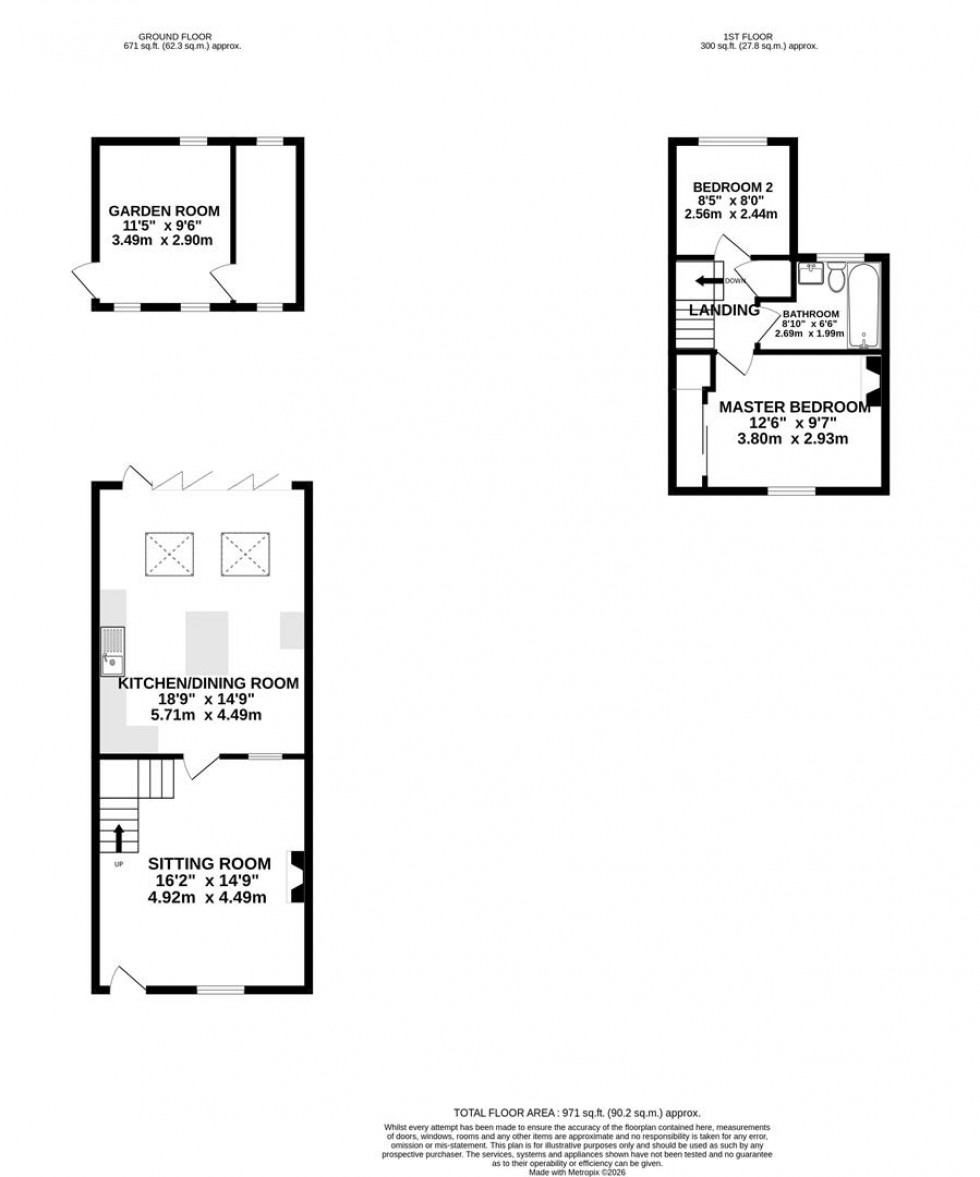
***NEW INSTRUCTION*** BEAUTIFULLY PRESENTED PERIOD COTTAGE SITUATED ON STRATTON ROAD OFFERING CONVENIENT ACCESS TO THE VARIOUS AMENITIES LOCATED IN GREENBRIDGE AND SWINDON TOWN CENTRE. THE PROPERTY COMBINES TIMELESS CHARM WITH MODERN CONVENIENCE, TO THE GROUND FLOOR THERE IS A COSY STTING ROOM LEADING TO AN EXTENDED KITCHEN/DINING ROOM WITH SKYLIGHTS AND BI-FOLDING DOORS. THE KITCHEN IS FINISHED TO A STUNNING SPECIFICATION AND INCLUDES FULLY INTEGRATED NEFF APPLIANCES TO INCLUDE; TWO OVENS, PROOFING TRAY, MICROWAVE OVEN AS WELL AS AN INDUCTION HOB ON THE BREAKFAST BAR. ADDITIONALLY, YOU HAVE AN INTEGRATED DISHWASHER, WASHING MACHINE, FRIDGE AND FREEZER. UPSTAIRS THERE ARE TWO BEDROOMS, THE LARGER TO THE FRONT WITH STORAGE ALONG WITH A THREE PIECE BATHROOM. OUTSIDE THERE IS A GENEROUS LOW MAINTENANCE, SOUTH FACING, REAR GARDEN WITH A PATIO TERRACE AND SECTIONS OF ARTIFICIAL LAWN. TO THE REAR THERE IS A USEFUL GARDEN ROOM FURNISHED WITH POWER AND LIGHTING WHICH COULD SUIT VARIOUS USES. THE GARDEN IS ENCLOSED BY TIMBER FENCING AND PROVIDES PEDESTRIAN GATED ACCESS TO THE DRIVEWAY PARKING.