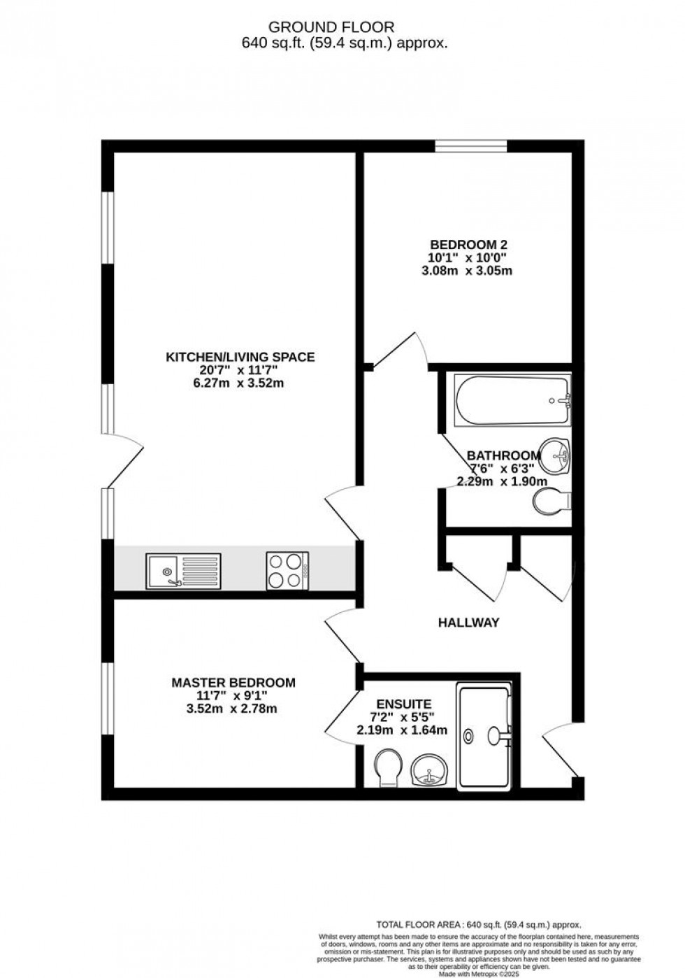
***AVAILABLE NOW*** Olympus House is a modern two double bedroom ground floor apartment, situated conveniently by the McArthurGlen Deseigner Outlet and Swindon Town Centre providing a great range of facilities. The apartment offers an open plan kitchen/family room, the kitchen is well equipped with integral appliances to include; fridge-freezer, electric hob and oven with extractor over as well as a dishwasher. The master bedroom includes an ensuite with double length shower and there is also a three piece main bathroom. The hallway has two useful storage cupboards and externally there is allocated parking for one vehicle. The apartment includes electric heating. RENT: £1200 p.c.m. HOLDING FEE: £276 DEPOSIT: £1384