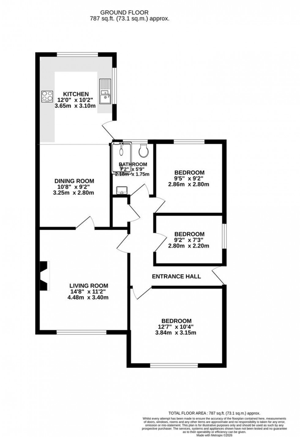
** NO ONWARD CHAIN ** This delightful semi detached bungalow, situated at the head of a sought after cul-de-sac, is presented in superb condition throughout and boasts a large South facing garden. Having been extended, the accommodation includes a spacious lounge, a smart re-fitted kitchen/diner with integrated appliances, three bedrooms (two doubles and one single), and a walk-in wet room. The rear garden is a stunning feature of this property and has been landscaped for ease of maintenance with a good size artificial lawn, patio area, stone chipped borders, shed, and car port to side. Gated side access leads to the front where there is recently added weather proofed cobblestone effect driveway providing parking for two cars. This beautiful bungalow is in "turn key" condition and has the benefit of many recent upgrades including a refitted kitchen and wet room, recently installed gas boiler, solar panels (with no restrictive contract), landscaped garden and new driveway DON'T MISS THE CHANCE OF MAKING THIS SUPERB BUNGALOW YOUR NEW HOME.