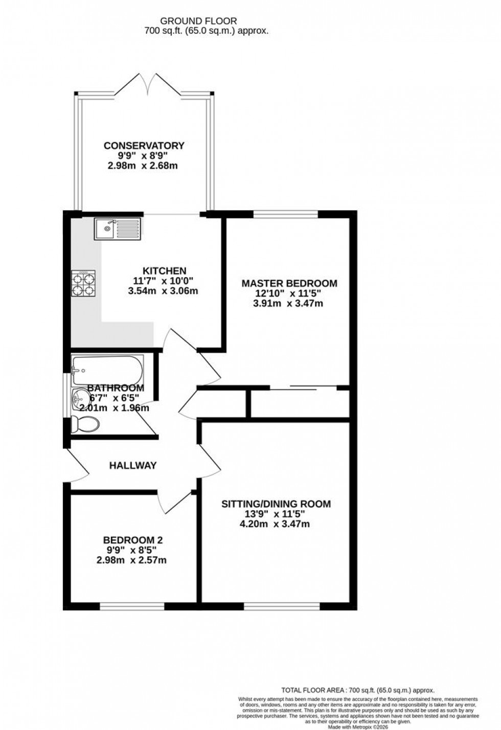
WELCOME TO THIS WELL PRESENTED SEMI DETACHED BUNGALOW SITUATED IN BARROWBY GATE WITHIN THE EVER POPULAR RESIDENTIAL AREA OF STRATTON ST MARGARET. THIS LOVELY HOME IS WELL MAINTAINED AND BEAUTIFULLY PRESENTED THROUGHOUT AND OFFERS DECEPTIVELY SPACIOUS ACCOMMODATION COMPRISING: ENTRANCE HALL, A RE-FITTED KITCHEN WHICH IS OPEN PLAN TO A BRIGHT SUNNY CONSERVATORY, A LIVING ROOM, TWO DOUBLE BEDROOMS AND A FAMILY BATHROOM. THE DELIGHTFUL REAR GARDEN IS MAINLY LAID TO LAWN WITH VARIOUS TREES AND SHRUBS, PATIO AND A SHED. SIDE PEDESTRIAN GATE LEADS TO THE SINGLE GARAGE WITH DRIVEWAY PARKING TO FRONT. DON'T MISS OUT ON THE OPPORTUNITY TO MAKE THIS TIDY BUNGALOW YOUR NEW HOME!