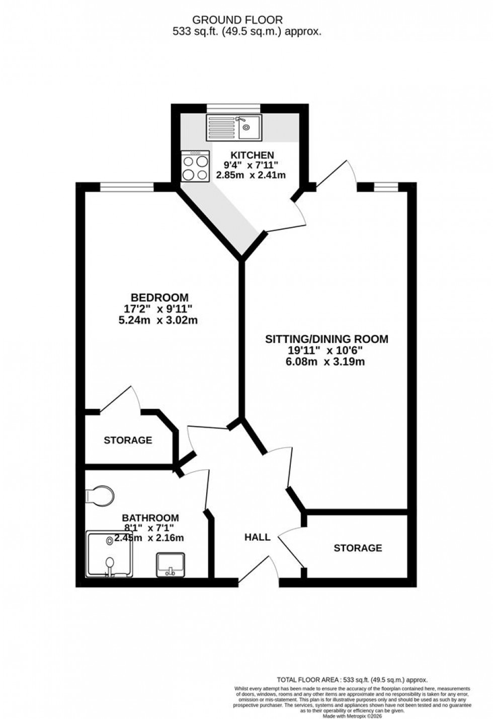
**Full Ownership**GILBERT PLACE WHICH COMPRISES OF 65 ONE AND TWO BEDROOM APARTMENTS HAS A REAL “WOW FACTOR” AS YOU WALK THROUGH THE ENTRANCE INTO THE RECEPTION AREA. FROM HERE YOU ENTER THE LIGHT AND AIRY COMMUNAL LOUNGE. FOR THE COMMUNITY OF FRIENDS AND NEIGHBOURS, IT IS THE HEART OF GILBERT PLACE WHERE THEY CAN SOCIALISE TOGETHER BUT THE RE ARE ALSO QUIET SPOTS TOO IF YOU JUST FANCY RELAXING. THE LOUNGE IS ALSO HOME TO THE FULLY LICENSED DISCOUNTED BISTRO RESTAURANT SERVING DRINKS AND SNACKS EVERY DAY. IN ADDITION TO THIS THERE IS THE 24 HOUR STAFFING/CARE PROVISION* WHICH CAN BE ADAPTED TO YOUR NEEDS, A GUEST SUITE* WITH EN-SUITE FACILITIES FOR YOUR FRIENDS AND FAMILY TO VISIT AND STAY THE NIGHT, A WELLNESS SUITE* INCLUDING A HAIRDRESSING SALON AND TREATMENT STATION. PARKING SPACES ARE AVAILABLE FOR SEPARATE PURCHASE. CONTACT THE SALES TEAM AT FOR FURTHER DETAILS. TO ARRANGE YOUR EXCLUSIVE PRIVATE VIEWING OF THIS SUPERB RETIREMENT APARTMENT CONTACT THE SOLE SELLING AGENTS CHAPPELLS WHO SPECIALISE IN SELLING PROPERTY IN OLD TOWN, LAWN & OLD WALCOT. CONTACT ONE OF OUR FABULOUS SALES TEAM NOW TO BOOK YOUR FREE MARKET VALUATION.