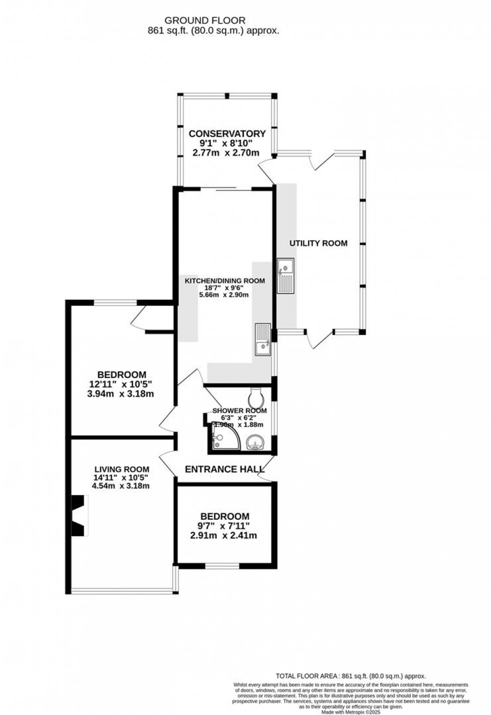
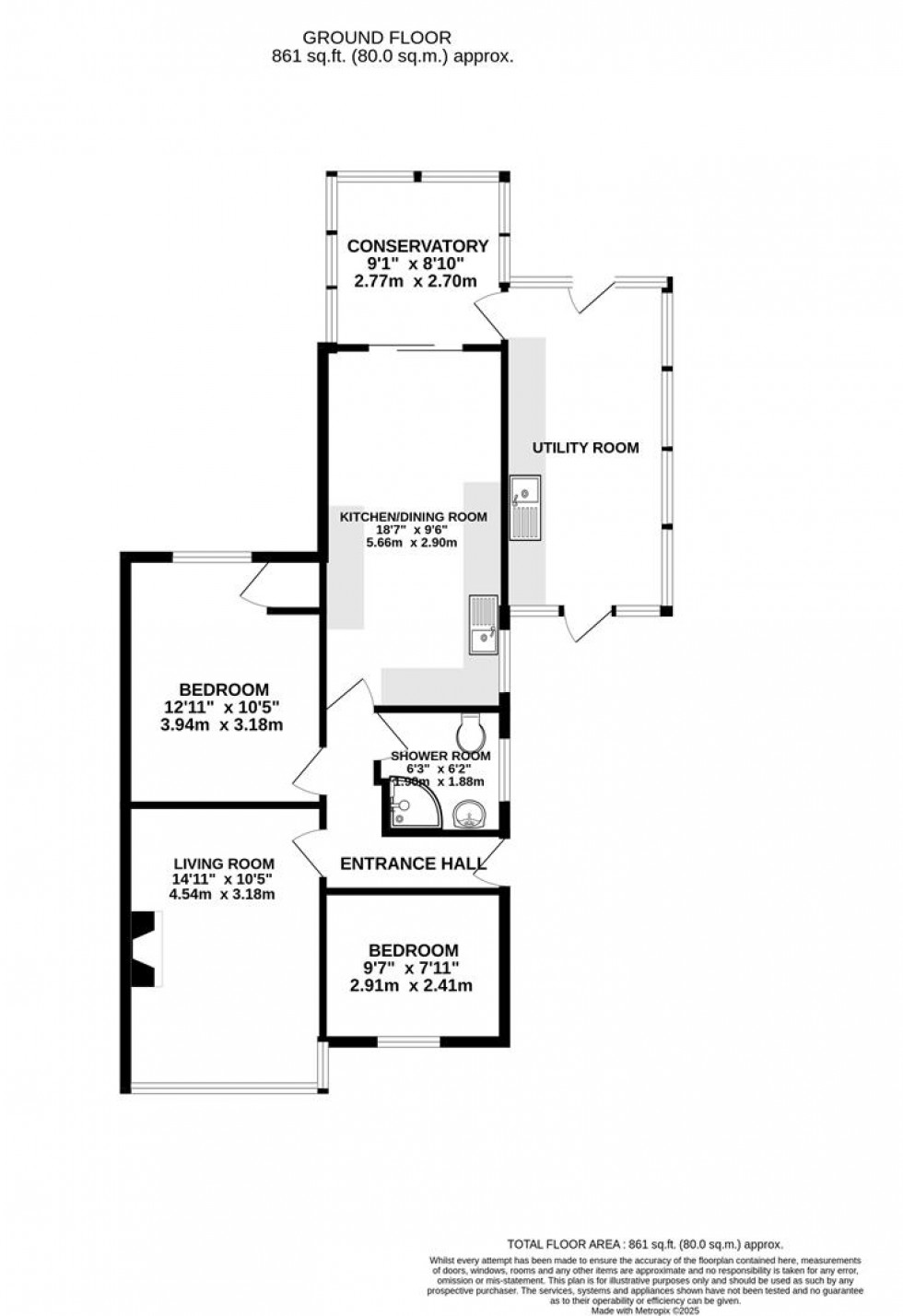
**New Instruction** AN EXTENDED TWO DOUBLE BEDROOM SEMI-DETACHED BUNGALOW OFFERED WITH NO ONWARD CHAIN. THE PROPERTY CAN BE FOUND IN GOOD ORDER THROUGHOUT BENIFITING FROM BOTH DOULBE GLAZING AS WELL AS GAS RADIATOR CENRAL HEATING. ONE PARTICULAR FESATURE TO THIS LOVELY BUNGALOW IS THE LARGE KITCHEN DINING ROOM WHICH GIVES ACCESS TO THE CONSERVATOTY & UTILITY ROOM. THERE IS AN ENCLOSED NON OVER LOOKED REAR GARDEN & PLENTY OF OFF ROAD PARKING TO THE FRONT OF THE PROPERTY. SITUATIED IN A QUIET ROAD WITHIN THE EVER POPULAR VILLAGE OF WROUGHTON WE STRONGLY RECOMMEND AN EARLY APPOINTMENT TO VIEW. Contact THE VILLAGE SPECIALISTS Chappells ESTATE AGENTS now to arrange your appointment to view.