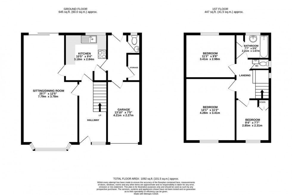
***NEW INSTRUCTION*** CHAPPELLS ARE DELIGHTED TO OFFER TO THE MARKET THIS SPACIOUS FAMILY HOME IN THE SOUGHT AFTER VILLAGE OF WROUGHTON. THE ACCOMODATION INCLUDES A DUAL ASPECT SITTING/DINING ROOM, KITCHEN, UTILITY AREA WITH A WC, STORE ROOM AND ACCESS TO THE GARAGE. ON THE FIRST FLOOR THERE ARE THREE BEDRROMS, TWO DOUBLES AND A SINGLE ALONG WITH A FAMILY BATHROOM WITH SEPARATE WC. TO THE REAR THERE IS A NON-OVERLOOKED GARDEN WITH MAIN AREA LAID TO LAWN AND A PATIO TERRACE. DRIVEWAY PARKING IS AVAILABLE TO THE FRONT FOR TWO VEHICLES. THE CURRENT OWNERS HAVE ALSO INSTALLED A NEW BOILER AND RADIATORS.