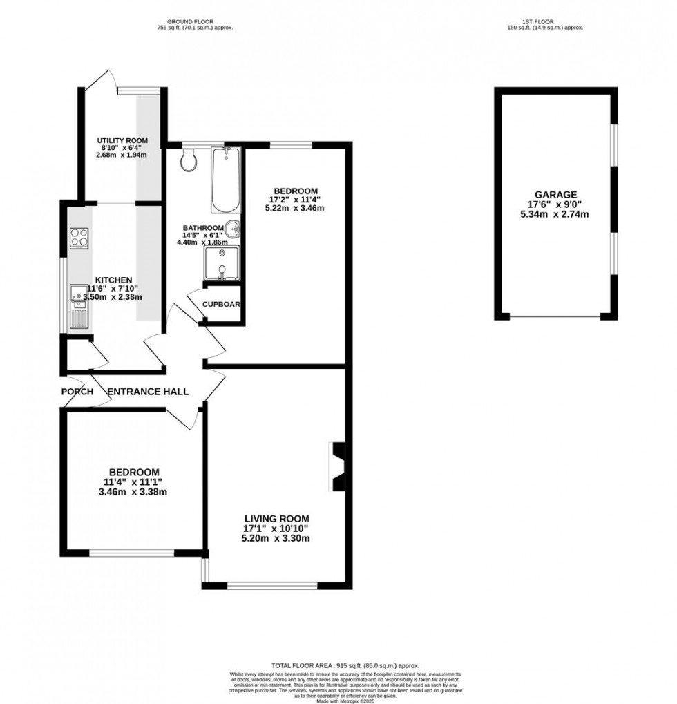
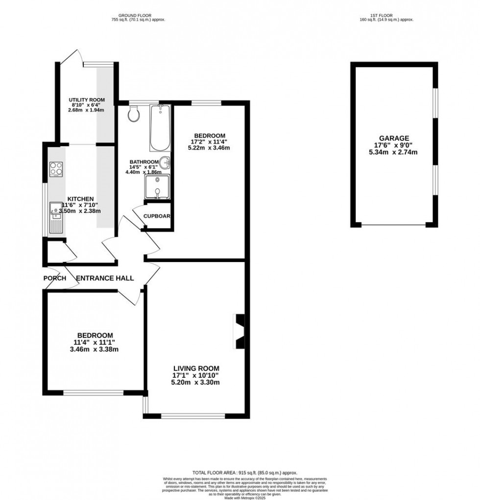
**New Instruction** WELCOME TO THIS EXTENDED SEMI DETACHED BUNGALOW LOCATED IN THE POPULAR VILLAGE OF WROUGHTON. THIS SPACIOUS PROPERTY HAS BEEN WELL LOVED AND MAINTAINED BY THE CURRENT OWNER FOR MANY YEARS BUT WOULD BENEFIT FROM SOME UPDATING. THE ACCOMMODATION INCLUDES A LARGE LOUNGE WITH FIREPLACE, A WELL APPOINTED KITCHEN, A USEFUL UTILITY WITH SPACE AND PLUMBING FOR LAUNDRY APPLIANCES, A LARGE BATHROOM WITH SEPARATE SHOWER CUBICLE, BATH, WC AND HAND BASIN, AND TWO DOUBE BEDROOMS, ONE OF WHICH HAS BUILT-IN WARDROBES. THE REAR GARDEN IS A DELIGHTFUL FEATURE OF THIS PROPERTY. IT IS LARGE AND PRIVATE WITH AREAS OF LAWN AND PATIO AND A VARIETY OF SHRUBS AND TREES. SIDE ACCESS LEADS TO A DETACHED SINGLE GARAGE WHICH HAS LIGHT AND POWER. A DRIVEWAY TO FRONT PROVIDES PARKING FOR THREE CARS. THIS BUNGALOW HAS STUNNING VIEWS TO THE FRONT OVER OPEN COUNTRYSIDE AND IS SURE TO CAPTURE YOUR HEART. DON'T MISS OUT ON THE OPPORTUNITY TO MAKE THIS CHARMING HOME YOUR OWN!