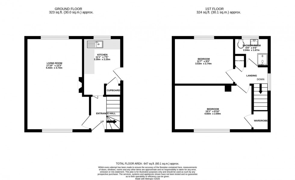
**New Instruction** A LARGE TWO DOUBLE BEDROOM END TERRACE HOME OFFERED WITH NO ONWARD CHAIN. THE PROPERTY BENEFITS FROM NEWLY INSTALLED GAS CENTRAL HEATING SERVICED BY RADIATORS AS WELL AS DOUBLE GLAZING. THE PROPERTY DOES REQUIRE SOME UPDATING BUT FEATURES A CORNER PLOT WITH OUTBUILDINGS. SITUATED IN THE POPULAR PARK SOUTH DISTRICT TO THE EAST OF SWINDON. WE STRONGLY RECOMMEND AN EARLY APPOINTMENT TO VIEW. CONTACT THE SOLE SELLING AGENTS CHAPPELLS OF SWINDON TO BOOK YOUR VIEWING.