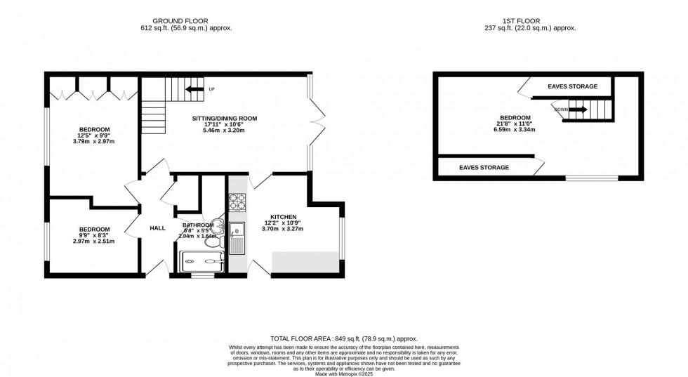
***NO ONWARD CHAIN*** BEAUTIFULLY PRESENTED CHALET STYLE BUNGALOW, WELL SITUATED IN THE DESIREBALE AREA OF COVINGHAM. THE PROPERTY INCLUDES THREE BEDROOMS, TWO ON THE GROUND FLOOR AND ONE IN THE CONVERTED LOFT. A REFITTED DOUBLE LENGTH SHOWER ROOM WITH FLOOR TO CEILING TILING, GENEROUS SITTING ROOM WITH FRENCH DOORS LEADING TO THE GARDEN AND AN EXTENDED KITCHEN/DINING ROOM. OUTSIDE THE PROPERTY HAS AMPLE DRIVEWAY PARKING FOR SEVERAL CARS WITH A COVERED SECTION. THE REAR GARDEN IS MOSTLY LAID TO LAWN AND WELL STOCKED WITH ATTRACTIVE TREES AND SHRUBS, THERE ARE ALSO SECTIONS OF PATIO READY FOR GARDEN FURNITURE. *Note we are unaware of any planning permission or building regulations for the loft room*