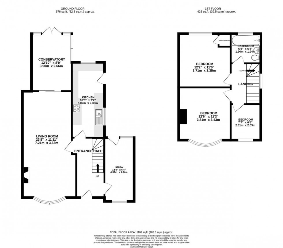
**New Instruction** THIS BEAUTIFULLY PRESENTED SEMI-DETACHED HOUSE HAS BEEN EXTENDED TO THE GROUND FLOOR AND OFFERS SPACIOUS FAMILY ACCOMMODATION INCLUDING A GOOD SIZE LOUNGE/DINER WITH FIREPLACE, A SUNNY CONSERVATORY, A RE-FITTED HOWDENS KITCHEN WITH INTEGRATED APPLIANCES, A FAMILY ROOM/STUDY WHICH COULD BE USED AS A 4TH BEDROOM, THREE BEDROOMS AND A FAMILY BATHROOM. THE DELIGHTFUL REAR GARDEN IS A STUNNING FEATURE OF THIS PROPERTY. SOUTH FACING AND LARGE IN SIZE, THE GARDEN IS MAINLY LAID TO LAWN WITH VARIOUS TREES AND SHRUBS AND OVERLOOKS PLAYING FIELDS TO THE REAR. THERE IS A NEW COMPOSITE SUN TERRACE, A FURTHER PATIO AREA AND A LARGE SHED. TO THE FRONT THERE IS DRIVEWAY PARKING FOR THREE CARS. Don't miss the chance of making this lovely family house your new home!