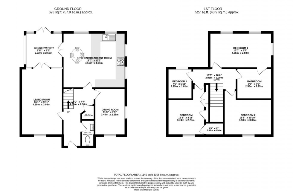
**Star Buy** OVERLOOKING A PLEASANT GREEN AREA, THIS SPLENDID DETACHED FAMILY HOUSE HAS BEEN GREATLY IMPROVED BY THE CURRENT OWNERS TO INCLUDE A NEWLY FITTED KITCHEN, HIGH END BATHROOM, GAS BOILER AND PATIO IN THE GARDEN. TO THE GROUND FLOOR THERE IS A WELCOMING ENTRANCE HALL, A CLOAKROOM, A SEPARATE DINING ROOM AND A LOUNGE WITH FRENCH DOORS INTO A CONSERVATORY. THE OPEN PLAN KITCHEN/DINER HAS BEEN RECENTLY RE-FITTED AND HAS A SMART FULLY INTEGRATED KITCHEN WITH BREAKFAST BAR, LARGE DINING/FAMILY SPACE AND ACCESS TO THE CONSERVATORY AND GARDEN. TO THE FIRST FLOOR THERE ARE FOUR BEDROOMS AND A STUNNING FAMILY BATHROOM WITH DOUBLE WALK-IN SHOWER, TWIN SINKS AND WC. THE REAR GARDEN IS FULLY ENCLOSED WITH A NEWLY LAID PATIO, ARTIFICIAL GRASS AND DOOR TO THE SINGLE GARAGE. THERE IS ALSO A GATED ACCESS LEADING TO THE FRONT OF THE GARAGE AND DRIVEWAY PARKING SPACE. IN SUMMARY, THIS DETACHED PROPERTY OFFERS A WONDERFUL OPPORTUNITY FOR ANYONE LOOKING TO SETTLE IN A SPACIOUS AND WELL-EQUIPPED HOME. WITH IT'S EXCELLENT LAYOUT, PRIVATE GARDEN AND DESIRABLE LOCATION, DON'T MISS THE CHANCE TO MAKE THIS HOUSE YOUR LOVELY NEW HOME.