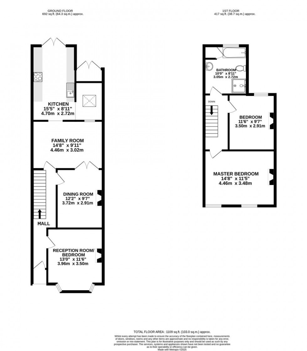
***New Instruction*** FANTASTIC OPPORTUNITY TO PURCHASE A CHARMING PERIOD HOME SITUATED ON AVENUE ROAD, IN THE HEART OF OLD TOWN IN SWINDON. THE PROPERTY ENJOYS VARIOUS ORIGINAL FEATURES TO RETAIN ITS PERIOD CHARM WHILST OFFERING MODERN COMFORT. THERE IS A BAY FRONTED LIVING ROOM (CURRENTLY USED AS A 3RD BEDROOM), TRADITIONAL DINING ROOM, MULTI-USE FAMILY ROOM AND KITCHEN/BREAKFAST ROOM. UPSTAIRS THERE IS A 4 PIECE FAMILY BATHROOM SUITE ALONG WITH TWO DOUBLE BEDROOMS. EXTERNALLY THE GARDEN HAS THE MAIN AREA LAID TO LAWN, WITH A PATIO PATHWAY LEADING TO REAR GATED PEDESTRIAN ACCESS.