Queens Drive, Old Walcot

Sold Subject to Contract £230,000

2 1 1

Located on the edge of the favoured Old Walcot district of Swindon close to Lainsmead School, we are pleased to offer this two bedroom end of terrace house benefitting from gas fired radiator central heating and some PVCu replacement double glazing.

To the rear is a good sized garden with sunny aspect which also houses the garage and additional car parking space. This area is located by a private road via Eastern Avenue.

Properties in this convenient location rarely come to market thus we strongly recommend the earliest inspection.

No chain of sales is involved in this transaction.

Note: The majority of furniture and contents can be made available if required.

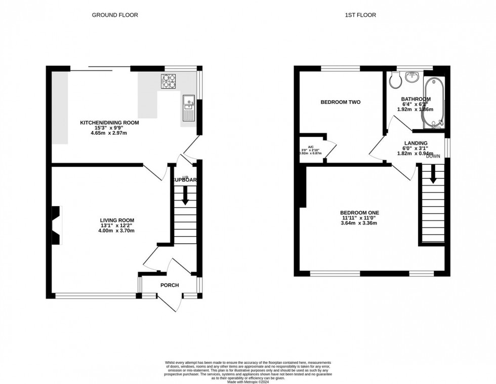
ACCOMMODATION

Fully glazed door to:-

STORM PORCH

Coach light. Door to:-

ENTRANCE HALL

Radiator. Door to:-

LIVING ROOM (4.04 into bay x 3.66)

Window to front. Traditional tiled fireplace with raised tiled hearth. Radiator.

KITCHEN/DINING ROOM (4.65 x 2.97)

Stainless steel single drainer sink unit over double base unit. Radiator. Cooker control panel. Range of built-in cupboards (eight). Double wall cabinet. Understairs cupboard. RDI wall mounted gas boiler supplying domestic hot water and radiator central heating. Plumbing for washing machine (not included). Two PVCu double glazed windows plus double glazed sliding patio door to rear. Understairs cupboard. PVCu double glazed door to Garden.

Staircase from Hall to Landing. Roof access.

BEDROOM ONE (4.62 max x 3.35)

Two windows to front (one is secondary double glazed). Radiator.

BEDROOM TWO (3.02 x 2.72)

PVCu double glazed window to rear. Radiator. Airing cupboard with insulated hot tank and immersion heater for supplementary use. Central heating programmer.

BATHROOM

White suite comprising:- Panelled bath with 'Gainsborough 720' shower over. Pedestal wash hand basin. Low level WC. Tile work. Radiator. Obscure PVCu double glazed window to rear.

OUTSIDE

To the front of the property the garden is of good size and formally laid out to paving, established rose borders and plantings. Low boundary walling. Pathway via side gate to rear garden. Beyond the front garden is a footpath and wide grassed area with trees separating this location from Queens Drive itself.

To the rear of the property the garden approaches some sixty feet or so in depth and is again neatly set out with a paved pathway, lawn and established borders. Aluminium framed greenhouse. Rear vehicular and pedestrian access from a slip road. Wrought iron gates to parking area alongside Garage. Patio.

DETACHED GARAGE

  • ENTRANCE PORCH & HALL
  • LIVING ROOM
  • KITCHEN/DINING ROOM
  • TWO DOUBLE BEDROOMS
  • MODERN FIRST FLOOR BATHROOM
  • GARDEN
  • GARAGE & OFF ROAD PARKING
  • CONTACT OLD WALCOT'S SPECIALIST AGENTS CHAPPELLS NOW
  • NO ONWARD CHAIN
Floorplan for Queens Drive, Old Walcot Floorplan for Queens Drive, Old Walcot
Similar Properties

Get an instant online valuation

Find out how much your property is worth